对意向公告中的采购内容进行更正及增加图纸
一、项目名称
重庆三峡职业学院密集书架采购项目
二、采购单位
重庆三峡职业学院
地址:重庆市万州区科龙路8号
联系人:李老师
联系电话:17358456545
邮箱:jwc@cqsxzy.edu.cn
三、项目背景
为进一步优化图书馆馆藏资源存放环境,提高空间利用率,我校现面向社会公开采购一批密集书架,诚邀符合条件的单位参与市场询价。
四、采购内容及要求
1.采购内容(更正后)
序号 | 产品名称 | 规格 | 数量 | 单位 |
1 | 手摇密集架 | W900*D560*H2050mm/组(内5层) | 93 | 立方 |
2 | 智能密集架 | W900*D560*H2150mm/组(内5层) | 75 | 立方 |
3 | 智能密集架电源集中控制中心 | 配套 | 1 | 台 |
4 | 数据显示终端 | 75寸 | 1 | 套 |
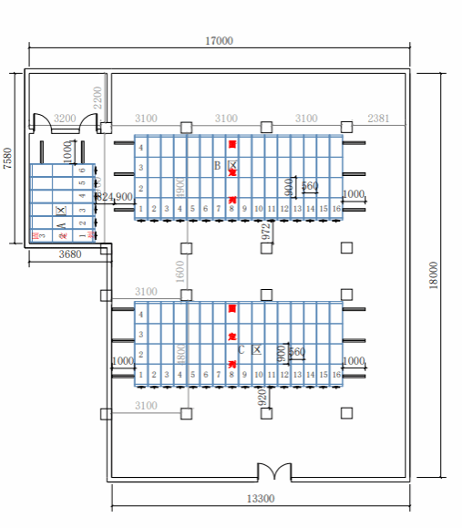
注:密集架现场布局图请参考附件1.
2. 采购预算
本项目预算为50万元,供应商报价不得超过此预算,否则视为无效报价。
五、供应商资格要求
1. 具有独立法人资格,持有合法有效的营业执照;
2. 近3年完成过类似项目(需提供合同复印件证明);
3. 未被列入“信用中国”失信名单;
4. 本项目不接受联合体报价。
六、报价文件要求
1.根据《附件:重庆三峡职业学院密集书架采购调研表》,填报相关材料;
2.报价包含所需的管理费、安装费、调试费、培训费等所有相关费用。
七、提交方式与截止时间
1. 报价文件需加盖公章,密封后提交(PDF电子版同步发送至指定邮箱);
2. 截止时间:2025年9月4日 17:00(逾期不予受理);
3. 提交地址:重庆三峡职业学院图书馆。
八、其他说明
1. 本次询价仅用于市场调研,非正式招标,不承诺最终采购;
2. 采购单位有权要求供应商补充材料或进行现场演示;
3. 报价文件恕不退还,采购单位对内容保密。
重庆三峡职业学院 教务处
2025年8月29日
附件1.密集架现场布局图

设计说明:
1.手摇密集架(A区、B区)
单组深560mm*单组宽900mm*高2050mm;
A区6列3组,共18组,21立方;
B区16列4组,共64组,72立方;
总计82组,93立方。
2.智能密集架(C区)
单组深560mm*单组宽900mm*高2150mm;
C区16列4组,共64组,75立方。
总计64组,75立方。
3.其他说明
5层/组,净层高≥335mm。